| Sijainti | Hillakuja 3, Loukinainen, Lieto |
|---|---|
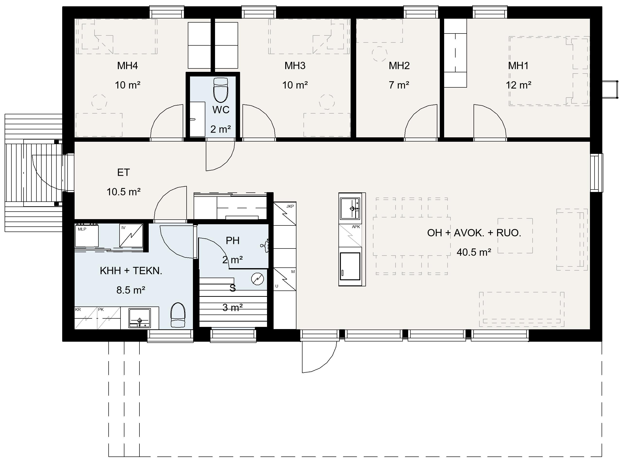
| Tyyppi | Omakotitalo (kiinteistö) |
| Huoneistoselite | 5h + avok. + khh + ph + s |
| Asuintilojen pinta-ala | 109 m² |
| Kerrokset | 1 |
| Valmistumisajankohta | kesä 2026 |
Perustiedot
Lisätiedot
| Energialuokka | A |
|---|---|
| Lämmitysjärjestelmä | Maalämpö |
| Lämmönjako | Vesikiertoinen lattialämmitys |
| Ilmanvaihto | Koneellinen poisto ja tulo, lämmöntalteenotto |
| Vesi ja viemäri | Kunnan |
| Sähköverkkoyhtiö | Caruna Oy |
| Valokuitu | Lounea |
Tontti
| Tontin omistus | Oma |
|---|---|
| Kiinteistötunnus | 423-428-5-406 |
| Tontin pinta-ala | 865 m² |
| Rakennusoikeus | 173 m² |
| Rakennusoikeutta jäljellä | 53 m² |
| Kaavoitustilanne | Asemakaava |



