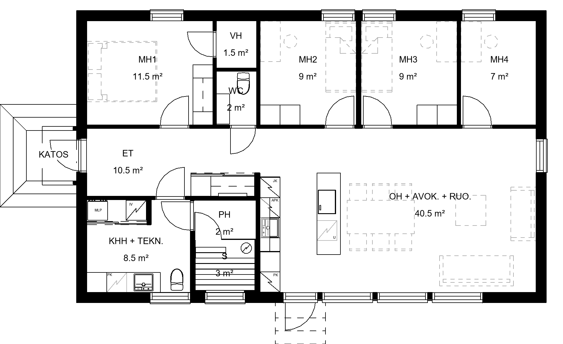
| Sijainti | Rapusmäentie 7, Loukinainen, Lieto |
|---|---|
| Tyyppi | Omakotitalo (kiinteistö) |
| Huoneistoselite | 5h + avok. + khh + ph + s |
| Asuintilojen pinta-ala | 109 m² |
| Kerrokset | 1 |
| Valmistumisajankohta | 12/2025 (arvio) |
Perustiedot
Lisätiedot
| Energialuokka | A |
|---|---|
| Lämmitysjärjestelmä | Maalämpö |
| Lämmönjako | Vesikiertoinen lattialämmitys |
| Ilmanvaihto | Koneellinen poisto ja tulo, lämmöntalteenotto |
| Vesi ja viemäri | Kunnan |
| Sähköverkkoyhtiö | Caruna Oy |
Tontti
| Tontin omistus | Oma |
|---|---|
| Tontin pinta-ala | 868 m² |
| Rakennusoikeus | 179 m² |
| Rakennusoikeutta jäljellä | 59 m² |
| Kaavoitustilanne | Asemakaava |



